
Právě pro vás stavíme v těchto lokalitách!

Klademe důraz na špičkovou kvalitu zpracování, maximální funkčnost a estetiku s dlouhodobou hodnotou. Každý projekt je navržen s ohledem na moderní životní styl, udržitelnost a efektivní využití prostoru, aby splňoval nejvyšší standardy současného trhu. Níže naleznete podrobný přehled našich aktuálních realizací.
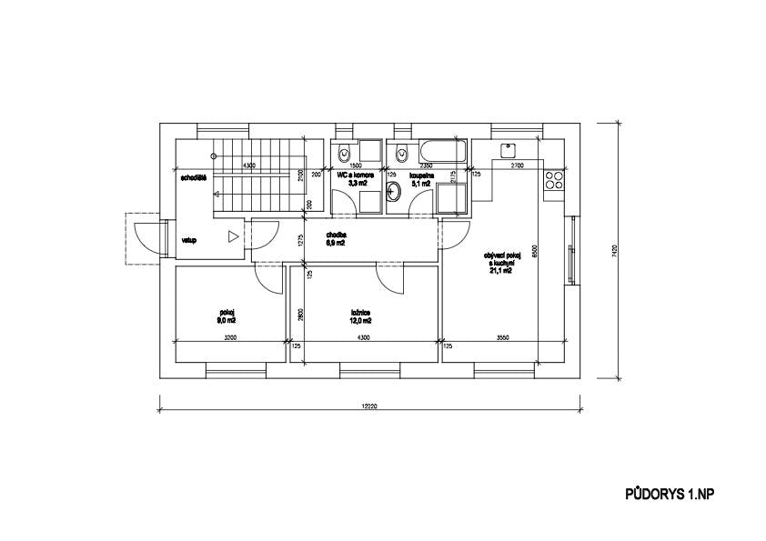
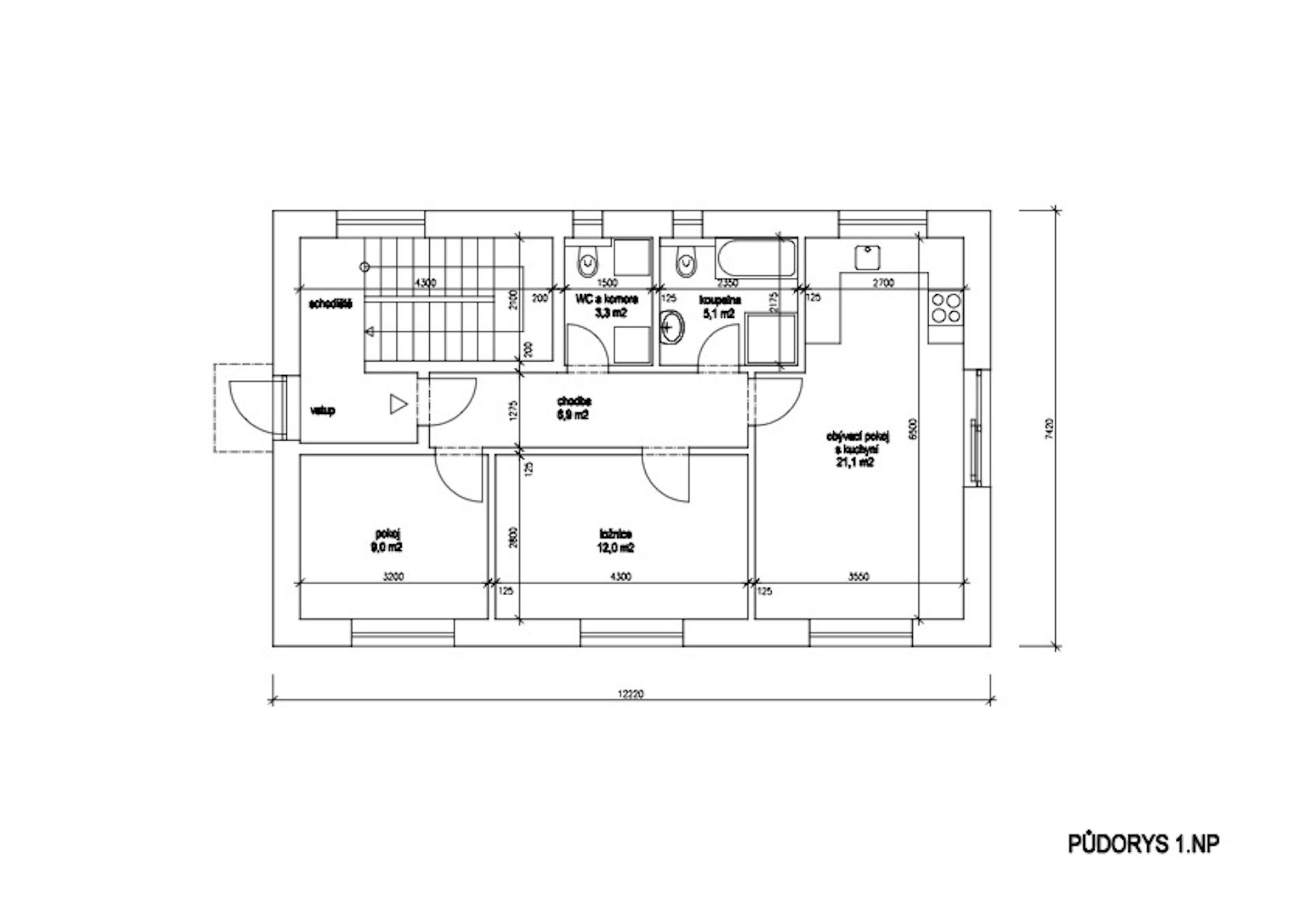
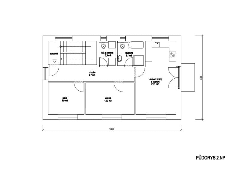
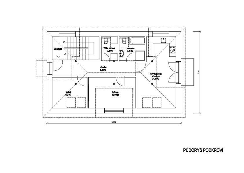
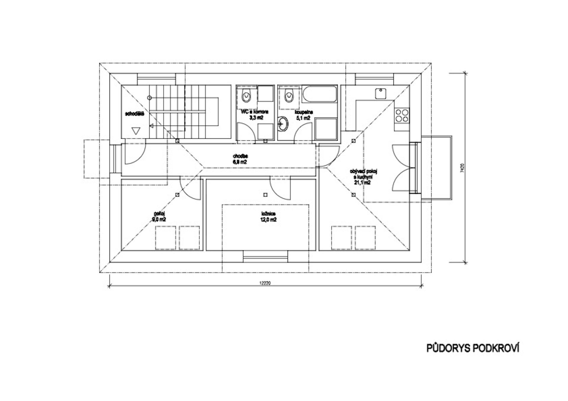
Nabízíme výstavbu rodinného domu o dvou bytových jednotkách v klidné části obce Větrušice (Praha-východ).
Z pozemku je krásný výhled na údolí Vltavy a v dálce na České Středohoří. Procházky a cykloturistiku umožňuje přilehlá národní přírodní rezervace Větrušická rokle. V blízkosti se nachází potraviny, restaurace, dětské hřiště a víceúčelový sportovní areál. V okolí se nachází ordinace praktického lékaře, mateřská i základní škola. Do Obchodního centra Letňany dojedete za 10 minut a je zde i přímé autobusové spojení na metro C.
Dům je projektován zděný (Porotherm), s plochou střechou a vybavený okny s izolačními trojskly. Každá bytová jednotka má své vlastní tepelné čerpadlo (NIBE). V ceně je zahrnuta také sanita, interiérové dveře i podlahové krytiny.
Projektovou dokumentaci je možné na přání klientů upravit, případně je možné vybraný dům i rozšířit. Výstavba je plánována v roce 2026.
Vizualizace



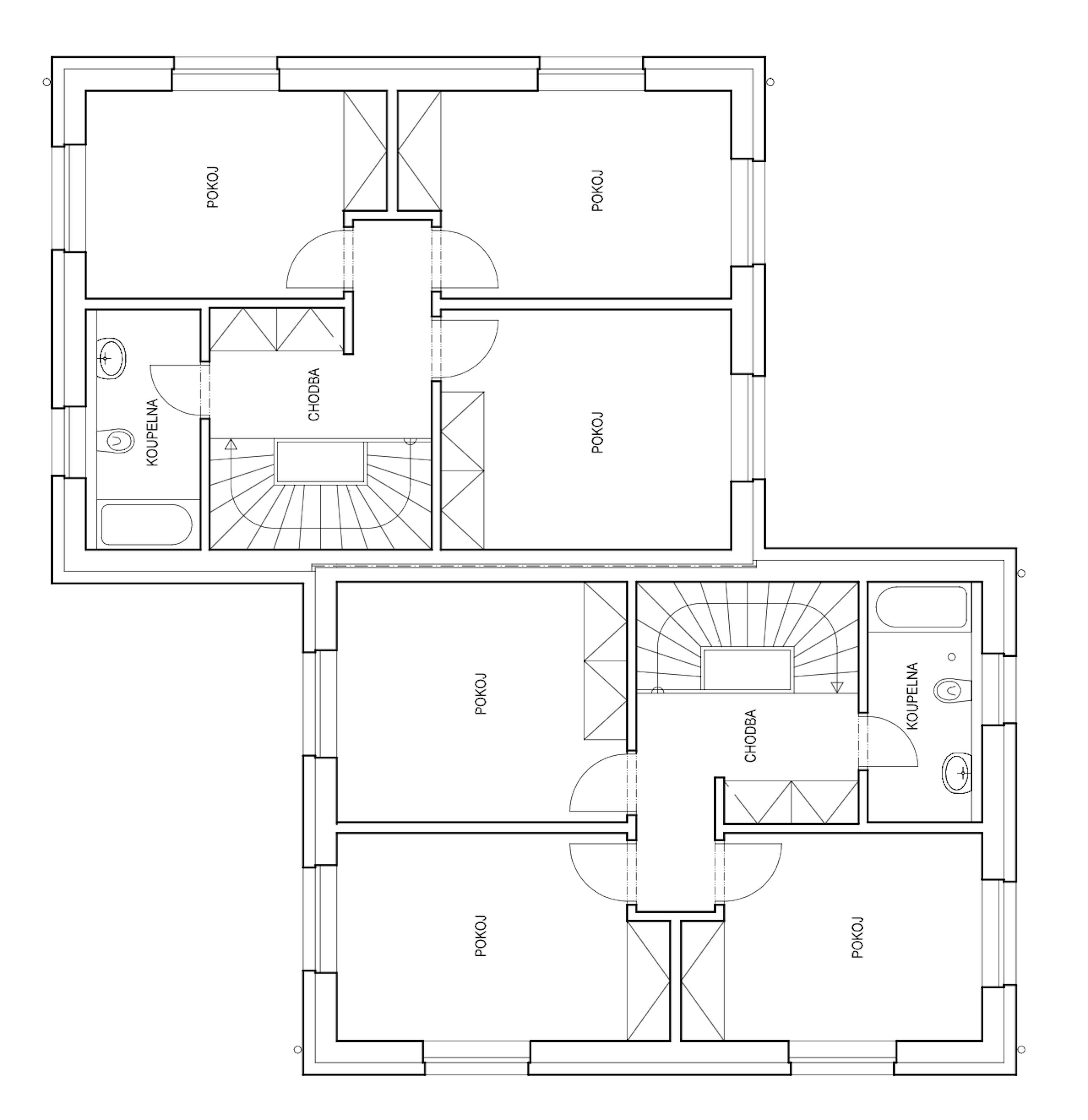
Nabízíme k prodeji jedinečný rodinný dům se třemi samostatnými bytovými jednotkami v prestižní lokalitě Prahy 5 – Košíře. Rohové umístění nemovitosti zajišťuje krásné výhledy na Prahu a díky svému dispozičnímu řešení představuje ideální volbu pro vícegenerační bydlení, propojení vlastního zázemí s možností pronájmu nebo jako atraktivní investiční příležitost.
Dům má tři nadzemní podlaží a podkroví, společné prostory tvoří vstupní hala a schodiště. Každý byt o velikosti 60 m² disponuje předsíní, dvěma pokoji, obývacím pokojem s kuchyní, koupelnou a samostatným WC s komorou. Byt v přízemí má vlastní zahradu o rozloze 108 m², byty ve druhém a třetím podlaží a v podkroví pak balkon, přičemž byt ve třetím podlaží nabízí navíc nádherné panoramatické výhledy. Každý byt má podíl na pozemku cca 70 m² a vlastní parkovací stání přímo na něm.
Technologie a vybavení domu odpovídají nejvyšším standardům současného bydlení. V každé jednotce je instalováno energeticky úsporné tepelné čerpadlo zajišťující vytápění i chlazení, podlahové vytápění přináší maximální komfort v celém interiéru a použité moderní materiály pocházejí od prověřených dodavatelů, kteří kladou důraz na ekologii a udržitelnost. Energetická náročnost budovy je v kategorii „A“ – mimořádně úsporná.
Lokalita spojuje naprostý klid a soukromí s výbornou dostupností do centra města. Dům stojí v tiché ulici s minimálním provozem, obklopený zelení a přírodou, přesto je v docházkové vzdálenosti městská hromadná doprava a díky blízkosti Anděla či Smíchova je centrum doslova na dosah ruky. V okolí je kompletní občanská vybavenost – školy, školky, zdravotní služby, obchody, restaurace, kavárny, parky i sportoviště, včetně přírodních rezervací Cibulka a Vidoule.
Platební podmínky
Tato nemovitost spojuje klidné, komfortní bydlení s prvotřídní adresou a moderními technologiemi.
Pro více informací nebo domluvení prohlídky nás neváhejte kontaktovat – váš nový domov na vás čeká v srdci Košíř.
Byt v 1 NP s vlastní zahradou (108m2) a parkovacím stáním
Dispozice a vybavení




Byt ve 2 NP
Dispozice a vybavení



Byt ve 3 NP
Dispozice a vybavení



Resort rezidenčního bydlení Zelené údolí čítá 9 nadstandardních vil o dispozici 3+kk až 5+kk, užitné ploše od 100 do 222 m2. Vily mají vstupní halu, interiérové designové schodiště, dvě až tři koupelny, šatny, garážové a venkovní stání pro dvě auta. Vily jsou umístěny na krásných pozemcích od 805 m2 s terasami a nádhernými výhledy do zeleného údolí.




Vedle resortu vil nabízíme také novostavby rodinných domů 3+kk, 68 m² nebo 4+kk, 85 m², se zahradou v obci Cvrčovice u Prahy.
Dům je energeticky pasivní s moderními technologiemi (tepelné čerpadlo, solární panely) a možností úprav dispozic. Nachází se v klidné lokalitě s výhledem do přírody, s dobrou dostupností do Prahy autem, autobusem i vlakem.
V okolí je bohaté sportovní vyžití a kompletní občanská vybavenost v blízkých obcích i na Kladně.



Nabízíme výstavbu rodinného domu o dvou bytových jednotkách v obci Olešná u Rakovníka. Obec je vzdálena cca 2 km od města Rakovník a je dostupná také MHD. V tuto chvíli probíhá dokončení výstavby dálnice směrem na Karlovy Vary a do roku 2025 by měl být dokončen nájezd u obce Kněževes. V okolí jsou lesy a krásná příroda s rybníky, také cyklostezka.
Dům je projektován zděný (Porotherm), vybavený okny s izolačními trojskly, na střechu je používána betonová krytina, a každá bytová jednotka má své vlastní tepelné čerpadlo od značky NIBE. V ceně je zahrnuta také sanita, interiérové dveře i podlahové krytiny.
Projektovou dokumentaci je možné na přání klientů upravit, případně je možné vybraný dům i rozšířit. Zahájení výstavby je plánováno v průběhu roku 2025. Stavební povolení je již vydáno.
Prodej stavebních pozemků: Klenovice u Milešova
Nabízíme k prodeji 4 stavební pozemky, každý o výměře 1 340 m², v malebné obci Klenovice u Milešova. Tato lokalita je ideální pro ty, kteří hledají dokonalý únik z města, aniž by ztratili spojení s metropolí – Praha je vzdálena pouhou hodinu jízdy po dálnici D4 (cca 83 km).
Součástí nabídky je:
Lokalita a volný čas:
Klenovice jsou dva kilometry od Orlické přehrady a v okolí najdete:
Využijte příležitost postavit si rekreační dům v lokalitě, která kombinuje klid venkova s výbornou dostupností Prahy.
Nabízíme 4 pozemky vhodné pro výstavbu rekreačních či rodinných domů v obci Klenovice u Orlické přehrady.




Jedinečná příležitost – jeden z posledních dvou volných pozemků s přímým přístupem k pláži a Orlické přehradě. Tento exkluzivní pozemek umožňuje parkování vlastní jachty, lodi či skútru přímo ze zahrady a nabízí široké možnosti využití.
Na pozemku se nachází luxusní, nadčasová inteligentní vila, která splňuje nejvyšší ekologické a energetické standardy. Moderní architektonické prvky, nízkoenergetické řešení a pasivní technologie zajišťují maximální komfort bydlení. Součástí vily je bazén a privátní wellness s výhledem na přehradu.
Vila Alfa je vybavena inteligentním systémem, který se zcela autonomně stará o vytápění, chlazení, větrání, regulaci vlhkosti i zabezpečení. Stavba využívá difúzně otevřenou skladbu stěn s instalační předstěnou a speciální deskou RigiStabil s vrstvou Active Air, která čistí vzduch od formaldehydu.
Vysoká kvalita materiálů a dlouhá životnost jsou zaručeny díky certifikovanému systému stěn od Saint-Gobain, technologiím od Efektivního domu a precizní výrobě v kontrolovaném prostředí výrobní haly.
Doba výstavby se pohybuje mezi 8 až 14 měsíci v závislosti na individuálních požadavcích na interiér.